Home
>
製品情報
>
ArtiosCAD
>
モジュール-MJとは
ArtiosCADのモジュールとは
ArtiosCADのモジュール(MJ)システムについて
必要なものを選べるモジュールシステム
ArtiosCADは個々の機能が20個のモジュール単位に分かれています。作図する機能、定型を利用する機能、図面を3Dにする機能などに分かれている中から必要な機能を組み合わせ、1つのCADとして使用します。
例えば3D機能を利用しない場合には、「3D機能」を省くことができます。必要な機能をチョイスし導入することで、初期コストの削減が可能です。ArtiosCAD利用開始後に追加したい機能が発生した場合でも、ライセンスの更新ですぐに利用できます。
※購入単位は幾つかのモジュールを集めたバンドル単位での購入・利用となります
基本的な作図を素早く・簡単に制作できるのはもちろん、ArtiosCADなら作図データを使い、3D化から木型や面版、CTPにいたるまで様々なデータを誰でも作成出来ます。
モジュールごとの機能紹介
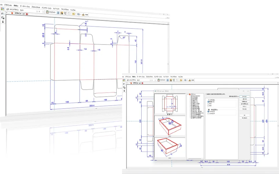
デザインモジュール
ArtiosCADが備える描画ツールは、まさにペンとカッターを使用しているような直感的な操作感とインターフェースを実現しています。その操作性は初めてCADを使う人であってもその日から作図ができるようになることからも実証されています。
>>デザインモジュールについて詳しく見る
3Dデザインモジュール
ArtiosCAD
3Dは複雑な図面でも素早く組上げる画期的なツールによって賞を獲得するほどの優れたソリューションです。平面図でカット線と罫線の線種を指定すれば、簡単に3D組上げプレビューが可能です。多様なデザインを組み合わせることが可能なので、パーツの分かれた複雑なディスプレイなどの集合体も作れます。
>>3Dデザインモジュールについて詳しく見る
マニュファクチャリングモジュール
作成した図面データを最適な取り都合で面付けし、CTPで使用するレイアウトデータの作成を行います。同時に面板用データと抜木型データも作成が可能です。このように作図の段階で加工時に必要となるデータを同時に作成することは、前工程のリードタイムを短縮させる手段として非常に重要です。
>>マニュファクチャリングモジュールについて詳しく見る
業界別推奨モジュール表
| モジュール |
印刷紙器 |
段ボール |
サイン
ディスプレイ
|
サイン
看板
|
木型 |
CPC
食品・医薬品
|
CPC
弱電・自動車
|
デザイン系モジュール
|
| 1 .デザイナー |
○ |
○ |
○ |
○ |
○ |
○ |
○ |
| 2 .ビルダー |
○ |
○ |
○ |
|
○ |
○ |
○ |
| 3 .スタイルメーカー |
○ |
○ |
○ |
|
○ |
○ |
○ |
| 4 .アドバンスドスタイルメーカー |
○ |
○ |
○ |
|
○ |
○ |
○ |
| 5 .アートメーカー |
○ |
○ |
○ |
○ |
|
○ |
○ |
| 6 .PDFインポート/エクスポート |
○ |
○ |
○ |
○ |
○ |
○ |
○ |
| 7 .レポートメーカー |
|
|
|
|
○ |
|
|
3Dデザイン系モジュール
|
| 8 .3D |
○ |
○ |
○ |
○ |
○ |
○ |
○ |
| 9 .3Dデザイナー |
○ |
○ |
○ |
|
|
○ |
○ |
| 10.3Dインポート |
|
○ |
○ |
|
|
|
○ |
11.SolidWorks
インポート/エクスポート
|
|
○ |
○ |
|
|
|
○ |
| 12.3Dアニメーション |
○ |
○ |
○ |
|
|
○ |
○ |
マニュファクチャリング系モジュール
|
| 13.レイアウト |
○ |
○ |
○ |
|
○ |
○ |
○ |
| 14.インテリジェントレイアウト |
○ |
|
|
|
|
|
|
| 15.ダイメーカー |
|
|
|
|
○ |
|
|
| 16.ストリッピング |
|
|
|
|
○ |
|
|
| 17-1.ラバーデザイン |
|
|
|
|
○ |
|
|
| 17-2.ラバーレイアウト |
|
|
|
|
○ |
|
|
| 18.インテリジェントカウンター |
○ |
|
|
|
○ |
|
|
| 19.コストエスティメイト |
○ |
○ |
|
|
○ |
|
|
| 20.ブランキング |
|
|
|
|
○ |
|
|
|
マニュファクチャリング系モジュール データ管理機能
|
インフォメーション
エンハンスメント
|
○ |
○ |
|
|
○ |
○ |
○ |